|
|
|||
|
2005.1.21掲載!
オーディオみじんこ Colossaltowerの製作 その1:製作思想と設計
|
|||
|
経緯 2004年11月のこと、ヤフーオークションがきっかけで私のホームページをご覧いただいたT氏から、スピーカーの製作依頼を受けた。遠く九州からのご依頼である。私の製作したバーチカルツイントールボーイスピーカーをご覧になって、興味を持たれたそうである。T氏は予てよりパイオニアのバーチカルツインスピーカーに憧れておられたそうである。そう、同社は1980年代後半ごろからコンシューマーオーディオ向けにバーチカルツインタイプのスピーカーを数多く発売していた。バーチカルツインとは別名「仮想同軸」とも言われ、ツイーターの上下にウーハーを配置するユニット配置方法を指す。バーチカルツインは巨大ユニットを縦方向に切り取ったのと等価になり、マルチユニットでありながら点音源に近ずくというメリットがある。結果、適格な音像定位と自然な音場感が得られやすくなる。他にも色々なメリットがあるのだが、説明が長くなるので割愛。私のメインスピーカーであるPA-2もバーチカルツインだ。T氏いわく、設置場所の関係から、あまり幅の広くないトールボーイタイプを望まれていたと言うこともある。 |
|||
|
製作思想 設計にあたり、T氏のご要望や試聴環境などをメールにて何回もやりとりした。その中で幾つかのキーポイントを見い出した。まず、テレビは近くに置かないので、防磁タイプでなくて良いということ。これで、ユニットの選択範囲が広がった。逆に言うと、防磁タイプのユニットとなるとユニット選択の幅がずいぶんと狭まるのだ。試聴は椅子に座わり、耳の高さは115cmとのこと。普通の音楽観賞位置からするとかなり高い位置だ。厳密にしなくても良いが、できればツイーターを耳の高さに近いところまで持っていきたい。というわけで、スピーカーの高さは120cm〜130cmくらいとする。正直、このくらい高いスピーカーは市販では少ない。フロアー型スピーカーと言えども1m程度のものがほとんどである。ちょっと背が高すぎるかと思うのだが、スピーカー底部に重石を入れれば安定するはずだ。リスニング位置を設計に取り込めるのも、自作ならではのメリットだ。T氏はSACDプレーヤーを所有しておられるので、超高域再生にも配慮する必要がある。できるだけ、高品質なスパーツイーターをあてがいたいところだ。仕上げについては、私に任せていただけると言うことで、私のオーディオシステムと同じ黒っぽい仕上げとすることにした。私がやり慣れているからである。もちろん、ニスなどを使った艶あり仕上げやツキ板を使ったメーカー並みの仕上げをやっても良いのだが、コストと労力が半端ではない。日曜大工での完璧なニス塗りはかなり難しいのである。エンクロージュア(スピーカーボックス)の方式はバーチカルトールボーイということもあって、バスレフになる。ダブルバスレフで低音をさらに稼ぐという手もあるが、共振周波数などの計算がややこしくなる。それに、失敗したら取り返しがつかない。であれば、事例が多く、計算がやりやすいバスレフの方が安全だ。さて、一番の課題はユニットの選択である。どのユニットを選ぶかで出来上がったスピーカーの音質傾向はかなり左右される。 |
|||
![]() |
|||
| そんなわけで、ユニット組み合わせ候補を5パターン考えてみた。候補1.2.3.のスピーカーボックスは全く同じで、候補4.5.は候補1.2.3.の横幅と奥行きをややスリムとしたものになっている。これらの候補は全てFOSTEX製ユニットの組み合わせとしている。FOSTEXは国内有数のユニットメーカーで、信頼性も高く、入手も容易。万が一、壊れた場合の修理体制も整っている。私自身もFOSTEXのユニットを多数愛用しているので、音質的な予想がつきやすい。近年、スピーカークラフト店には台湾などの安価な海外ブランドユニットが多数出回るようになったが、私はこれらのユニットを使用したことが無いため音質的傾向が不明だ。もちろん、秋葉原のオーディオ店のデモ機を試聴したりすれば、音質傾向はつかめるのだが、往々にしてこれらデモ機は売れ筋の8cm〜10cm程度のフルレンジユニットのみであって、16cm〜20cmクラスのユニットのデモ機はあまり置いていない。ユニットのスペックを見れば作れないこともないのだが、失敗するわけにはいかない。長岡先生亡き今、最近輸入されてきた台湾ユニットの作例が雑誌に掲載されることはあまりない。あっても8cm〜10cm程度のフルレンジユニットのみだ。これら海外ブランドユニットを私自身で使う分には構わないが、依頼されて作るとなると失敗するわけにもいかないので、安心して使えるFOSTEX製ユニットがベストと考えた。なお、それぞれの候補に掛かる経費の概算は以下の通り。 | |||
![]() |
|||
| 候補1.は一番安価な組み合わせ例。FOSTEXの普及価格帯フルレンジユニットFE206Eとホーン型ツイーターFT17Dを組み合わせた。これはホームページに掲載しているバーチカルツイントールボーイスピーカーとほぼ同じユニット構成。これらは普及価格帯のユニットだが、十分な性能を有している。なお、FE206E(非防磁)をFE207E(防磁)に代えると、ホームページに掲載しているバーチカルツイントールボーイスピーカーと全く同じユニット構成、つまり防磁タイプのスピーカーになる。私の作例では予算の都合から、板材を薄くて安いもの(15mm厚ラワン合板)にしたこと、中古ユニットが入手できたこと、さらには塗装を省略しているので、材料費は6万円に抑えられている。しかしながら、予算的に余裕があるなら板厚は21mmシナ合板にし、ネットワークパーツ(コンデンサー)も高音質タイプを使いたいところ。その場合の材料代は9万円と推定される。もちろん、FE206E+ FT17DとFE207E+FT17Dでは外見と音質傾向はほとんど変わりない。FE206E/FE207Eは2年前に発売されたユニットで、元はFE204/FE207という十数年の長きに渉って定評のあったユニットのバージョンアップユニットだ。FT17Dはやはり十数年程前から生産されているツイーターで、価格の安さと良質な音質が受けて、いまだに現役。これらの組み合わせは、明るく反応性がよい音色で、ポップス系からオーケストラにも対応できると思われるが、特にボーカルものに良く合うだろう。車に例えると、スポーツカータイプのクーペという感じか。音質的には30万円クラスの市販スピーカーと競えあえると予想。作る側からすると、フルレンジ+ツイーター駆動となるので、ネットワーク回路が単純であり、スピーカーボックス内の配線作業が楽。また、ネットワークパーツが単純であれば、音楽信号の劣化が少なくて済むので、それだけ純度が高い音質が得られる。余談だが、市販スピーカーは複雑なネットワーク回路によって周波数特製の徹底したフラット化を目指しているものが多いように思う。しかし、ネットワーク回路が複雑になればなるほど、そこを通る音楽信号が劣化していく。従って、癖もない代わりに、面白みに欠け、音がなんとなく鈍くなったり、細かい音がマスクされてしまうなど、音質劣化の原因になっていることが多いように思う。もちろん、複雑なネットワークを有しながら素晴らしい音質を奏でるスピーカーも沢山あるのだが。 候補2.は候補1の高級バージョンとなる。FOSTEX製の最高級フルレンジユニットFE208EΣとホーン型スーパーツイーターFT96Hを使っているのが特徴。FE208EΣは大型の20cmユニットで、最新の理論に元づいた設計がなされている。FE208SSやFE208ESなどの限定品を除けば、世界中の現行20cmフルレンジユニットの頂点と言ってもよいだろう。これを贅沢にも計4本使用したスピーカーを私は今だ見たことが無い。それゆえに、作る側からしてもとても興味のある作例となるだろう。FE208EΣは作りがしっかりしていて高級感があり、見た目にも候補1を上回わる。FT96Hというツイーターは俗にスーパーツイーターと呼ばれるもの。音質は候補1より上になると推測される。たぶん、候補1に繊細さと全体的な解像度をアップさせた感じになると考えられる。スーパーツイーターを搭載しているので、SACDなどの超高域ソフトの再生にも万全な対応。この候補2は候補3と並んで今回の候補中1番のお勧めがが、ユニット代が高くついてしまうのが難点。ユニット代だけで候補1のユニット代の倍以上する。音色はポップス系は言うに及ばず、オーケストラやロック系の激しい音楽にもいかんなく能力を発揮できそうだ。フルレンジユニットなので、低域の量感は若干少ないのだが、その代わりに反応性の良い締りのある低音が得られるだろう。また、候補1.と同じくフルレンジ+スーパーツイーター駆動となるので、ネットワーク構成が単純で、音質劣化が少なく、作る側の配線作業も容易。車に例えると、高級スポーツカーという感じだろうか。音質的には100万円クラスの市販スピーカーと競えあえるだろう。むしろ、市販品にはない独特の瞬発力を備えたスピーカーになりそうだ。 候補3.はFOSTEXの最高級20cmウーファーFW208Nと高級ソフトドーム型スーパーツイーターFT48Dの組み合わせです。この組み合わせは候補1.2.とは違った鳴り方をするだろう。むしろ、この候補3.の方がオーディオ的には模範的な鳴り方をしそうだ。つまり量感のある低域を中心としたピラミッドバランスの音調。FW208Nは20cmウーファーの頂点的存在で、これに勝るエネルギー感を持つ20cmウーファーはそうはない。この強力ウーファーを計4本使用しているので、低域の量感があふれた馬力のある音質となりそうだ。かなりの大音量再生にも耐えられる。候補1.2.ではボーカル帯域は20cmフルレンジから発しますが、候補3.ではツイーターからボーカル帯域を発する。FT48Dというツイーターはとても優秀で、とても生き生きとしたボーカル音を再生する。20kHz以上も再生するので、SACDにも対応できる。FT48DとFW208Nは定評のある組み合わせで、音色的バランスの良さは随一。自作スピーカー製作の権威である長岡鉄男氏の作例にも同じユニットの組み合わせ例が多数あるので、ネットワーク設計の見当がつきやすい。私がイベントなどで今まで試聴してきたスピーカーの中で、あまりの瞬発力とバランスの良さに度胆を抜いたのはFW208NとFT48Dを組み合わせたスピーカーだった。また、これらのユニット組み合わせは見た目のマッチングも良く、重厚で高級感がある。なお、この候補3.にはツイーター側にアッテネーターを搭載することになるので、高域の音量を好みに調整できるという利点がある。欠点は候補2.と同じくユニット代が高額になること。また、ネットワーク回路が入るので、候補1.2.に比べると再生の純度が落ちると懸念されるが、そこは高音質パーツをセレクトすることで、音質劣化を最小限に抑えよう。このスピーカーは候補1.2.と比べるとネットワークパーツが多いので、ネットワーク回路の組立て作業が大変だが、候補2.に並んでお勧めのスピーカーといえる。車に例えると、高級セダンという感じ。エンクロージュアを徹底して剛性化すれば、100万円クラスの市販スピーカーと競えあえそうだ。見た目も音質も安心してお勧めできるスピーカー。 候補4.は候補2.の小型バージョン。高さは同じ120cmだが、横幅を30cm→26cmに縮小、奥行きを36cm→30cmに縮小。ツイーターは変わらないが、フルレンジユニットを16cmのFE168EΣに変更。音色は候補2.とほとんど変わりないと思いが、口径が小さくなるので低域の押し出しがやや弱くなるだろう。 候補5.は候補3.の小型バージョン。スピーカーボックスの寸法は候補4.と同じ。16cmウーハーユニットFW168Nを使用し、ツイーターもそれに見合う小型のFT28Dを選択。馬力がある音質と推定されるが、候補3.に比べると低域の量感が若干少なくなるだろう。その代わり、中域の張りを特徴としたメリハリのある音質になると思われる。 |
|||
|
設計 これら候補の中で、依頼主のT氏は候補2.を選ばれた。様々な計算と板取りを繰り返し、数回に及ぶ設計変更をおこなった。 |
|||
![]() |
|||
| これは設計初期の板取図。高さ1,220mmとしている。これでは低いので、さらに高さを延長して下図の板取り図になる。 | |||
![]() |
|||
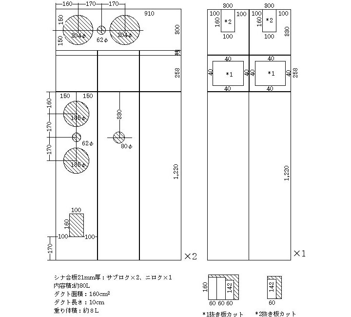
| 上図は設計を数度やり直した結果、出来上がったスピーカー板カット図。21mmサブロクシナ合板3枚をフルに使い切る設計になっている。我ながらとても合理的な板カットだ。しかし、コイズミ無線の店員さんアドバイスを受け、大幅変更することになった。
|
|||
![]() |
|||
|
上の板取図が決定稿。より良質なスピーカーを目指すべく、大幅な設計変更をした。15mmサブロク1枚と21mmサブロク2枚をフルに使い切る設計になっている。設計変更の理由は、当初使う予定だったFT96Hの代わりに、より上級のT90Aを中古入手出来たことにある。これを今回のスピーカーに使うことにしたため、大幅な設計変更となったのだ。T90Aをスピーカーボックスへ取付けるにはそれなりの工夫が必要だが、いい案を思い付いたのでなんとかなるだろう。また、昨日、スピーカー工房コイズミ無線の店員さんと打ち合わせを行なった結果、バスレフポートを背面に設けることにした。これはダクトから洩れ出す余分な中高音を耳につきにくくするための工夫。フロント面にダクトが無いので、外見もスッキリする。また、バスレフポートの形状を検討した結果、5本の小口径ダクトを設けることに。見た目にも面白く仕上がりそうだ。下図の右側の板カットの7個の穴が開いた板の内、中程の5個がバスレフポートになる。残りの2つの穴は何かというと、上の穴はスピーカーターミナルの取り付けポート。下の穴は砂利の投入口。もう一つ、変更点がある。それはフロント面の変更。前の板取図では、重量配分の関係からフロント21mm、リアだったが、コイズミ無線の店員さんによると、FE208EΣは相当に強力なユニットなので、できればバランスを崩さない程度にフロントの厚みを増した方がいいというもの。そこで、フロント面に使用する板には15mm厚を使用し、これを2枚重ねにすることで、30mm厚のフロント厚みを確保。他の面は21mm厚。予定よりカット工賃が増えたが、これは21mmから15mm厚にしたコストダウンと相殺されたので、全体的な板材代はほとんど変わりない。 板取り最終稿が出来上がった日、東急ハンズ渋谷店に板カットの依頼を行なった。私的に言うと、通勤経路にある新宿店に依頼できれば楽だったのだが、新宿店にはあいにく21mm厚の在庫がなかったのだ。依頼してから手元に届くまで5日。とりあえず、ほっと一息だ。スピーカー製作において板取り図が出来上がれば、仕事の半分が済んだようなもの。 |
|||
|
|
|||