|
|
||||||||||||||||||||||||||||||||||||||||||||||||||||||||||||||||
|
|
||||||||||||||||||||||||||||||||||||||||||||||||||||||||||||||||
|
オーディオみじんこ
オーディオ聖地巡礼記2005年9月中旬 9月はネタがたくさんあり過ぎ、上旬中旬下旬に3分割しました。 |
||||||||||||||||||||||||||||||||||||||||||||||||||||||||||||||||
| ここでは、みじんこの足で稼いだオーディオショップ巡礼記をお伝え。巡礼地は秋葉原を中心とした東京都内のオーディオショップ。みじんこの目に止まった新入荷のオーディオアクセサリーや珍品、名機と謳われた中古オーディオ機器の入荷状況をいち早くご紹介!みじんこがオーディオ店で見た聞いたオーディオ業界裏話も。 | ||||||||||||||||||||||||||||||||||||||||||||||||||||||||||||||||
|
2005.9.21
暗中模索の次期オーディオみじんこシステム こんばんはみじんこです。昨日は一雨降ったので、今日からはいよいよ涼しくなるみたいですね。さて、今日はオーディオみじんこの次期オーディオシステムの進捗状況をご紹介。私事なんですけど、みじんこ氏はこんなことを考えているんだと、知っていただくのも面白いかなと。 遅々として進まないオーディオみじんこの次期システム構築。ラック/スピーカー/オーディオ機器/ケーブルなど、全てを一からやり直すことに決めたので、これがまぁ大変で。ラックの構造をどうするか?システムの高さは?費用は?スピーカーをどこに配置して、どんなものにするか?子供のいたずら対策はどうするか?などなど、これら全ての事象を総括してあーでもない、こーでもないと日夜四苦八苦してます。ま、考えているのも楽しいんですけどね。 |
||||||||||||||||||||||||||||||||||||||||||||||||||||||||||||||||
![]() |
||||||||||||||||||||||||||||||||||||||||||||||||||||||||||||||||
| んで、ようやく落ち着きつつあるのが、上の図案。難題であった液晶テレビの設置方法は、株式会社ヒガシというメーカーのHPseries+という長大な突っ張り棒を用いて壁掛け設置することに落ち着きそうだ。今回のみじんこピュアオーディオ機器は横幅が300mm程度のミニサイズに揃えている。これらの機器は横並びに設置。その台座となるべきオーディオラックは、横幅600mmのものを4列横並びに設置。横幅総延長2,400mmのラック天板部分にオーディオ機器類を設置する。2,400mmというと、みじんこの6畳間リスニングルームのオーディオシステム設置幅ぎりぎりぴったりの寸法だ。ラック自体には防振効果を持たせた構造とし、オーディオ機器への振動伝達を減衰させる。ラック内部には、薄型のAV機器類を設置。ラックの下には、オーディオアクセサリーを収納する引き出しを設置し、ケーブルやクリーナー、インシュレーターなどの小物類を収納し、必要な時にすぐに取り出せるようにする。 | ||||||||||||||||||||||||||||||||||||||||||||||||||||||||||||||||
![]() |
||||||||||||||||||||||||||||||||||||||||||||||||||||||||||||||||
| 図が横になっているので、見づらいですがご勘弁を。設計が煮詰まりつつあるオーディオラックの設計図。オーディオラックの天板と底板はシナアピトン合板を使用。金属板や防振ゴムなどをサンドイッチし、振動の制御を図る。さらに、天板と底板を繋げる垂直方向の部材には、真鍮パイプかステンレスパイプを使用。パイプ内部にはジルコンサンドを充填。上下双方からの振動伝達を、このパイプ部分で減衰させる。合板はマキゾウさんに依頼しようと思っている。電話帳やネットで、近所の金属加工会社を探し出し、アルミ板や銅板の入手先は確保した。問題は金属パイプの入手とカットだ。私はパイプをカットできる機材を持ち合わせていないし、高精度なカットとなると、業者に委託した方がよさそうだ。この業者も最近なんとかメドが付きそうで、今後は見積もり交渉に入る。設計図には載せていないが、ラックにはガラス板も用いる予定で、これも電話帳を元に、近所のガラス屋を手当り次第に訪問、安くガラスカットしてくれるお店を見つけた。このように、素材一つ一つの入手先を探しながらのラック設計なので、時間が掛かる。きっとお金も掛かるだろう。これらの防振設計は私の素人考えなのだが、素人だからこそ、メーカーではやりずらそうな複数素材の組み合わせなどにもチャレンジ出来る。 | ||||||||||||||||||||||||||||||||||||||||||||||||||||||||||||||||
![]() |
||||||||||||||||||||||||||||||||||||||||||||||||||||||||||||||||
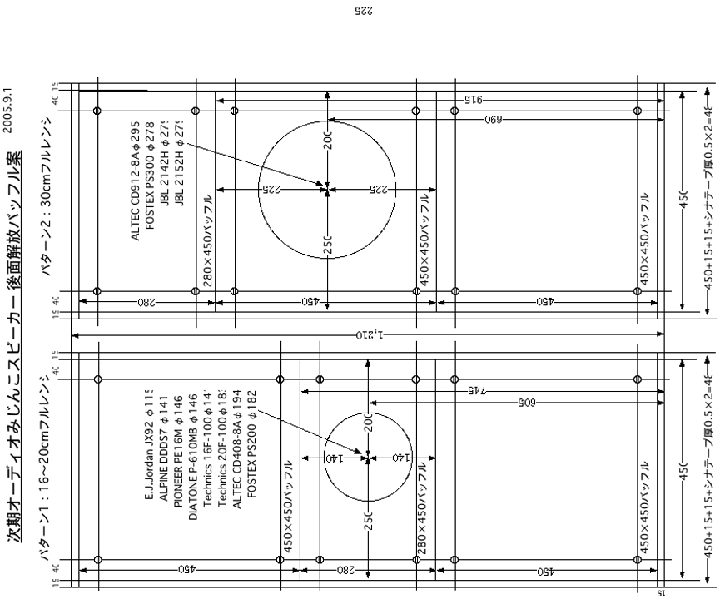
| こちらはスピーカーの設計図。正面設計図のみなので、何がなんだかわかりずらいが、これは後面解放スピーカー。高さ1,200、幅450、奥行き300ほどの大型スピーカーだ。このスピーカー、実は子供のいたずら防止用のオーディオ機器カバーも兼ねたスピーカーとなっている。使わない時は、オーディオ機器にすっぽり被せるのだ。オーディオ機器類に被せるいたずら防止カバーを何かに利用出来ないかと考え抜いた末、カバー自体をスピーカーにしてしまおうと思いついたのだ。フロントバッフル面は3分割されており、自在に脱着が可能とする。バッフルを分割する事で、後面解放や平面バッフルの弱点である共振を極力排除するという意図もある。すでにこのスピーカーに搭載するユニットとして、JBLの30cm同軸2wayユニット2142Hを入手済み。30cm同軸ユニット搭載の後面解放スピーカーによるニアフィールドリスニングという、非常識きわまりないオーディオ環境が整うことになる。後面解放にはメリットとデメリットが混在するのだが、今の私にはデメリットもメリットになりうる可能性がある。一番大きいデメリットは低音が出ないことだが、これは至近距離で聴く事である程度克服出来るし、現在の私の住環境ではあまり低音がドスドス鳴りすぎても困るのだ。ま、ここらへんの諸事情は説明すると長くなる。このスピーカーが実用に堪えうるのかどうかもまだわからないので、後面解放の詳細についてはまた後日ということで。
次期スピーカーとしては、FOSTEXユニットFW208NとFT48Dを用いた小型2wayバスレフも予定しているのだが、まずは後面解放スピーカーを片付けねば。 |
||||||||||||||||||||||||||||||||||||||||||||||||||||||||||||||||
![]() |
||||||||||||||||||||||||||||||||||||||||||||||||||||||||||||||||
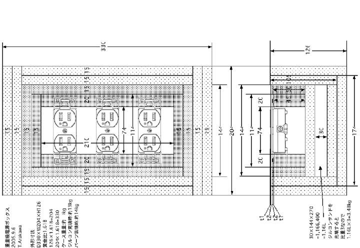
| 今回のシステムに組み合わせるべき新型電源ボックスも設計中。これは縦/横/長さが黄金比1.618で構成される大型6個口電源ボックス。つまり、H×1.618=W W×1.618=Dとなっており、具体的には、H126 W204 D330という寸法になっている。なぜ、黄金比なのかと問われれば、単なる思いつきだ。ま、見た目のバランスはこの上なく良いはずだ。次期みじんこオーディオシステムでは、電源ボックスもオーディオ機器も主役の一つとして、機器と一緒に並べたいと考えている。だから、存在感のある大型重量級電源ボックスを製作したいのだ。 | ||||||||||||||||||||||||||||||||||||||||||||||||||||||||||||||||
![]() |
||||||||||||||||||||||||||||||||||||||||||||||||||||||||||||||||
| 上述の黄金比電源ボックスはちょっと大きすぎたので、もう少しスリムな電源ボックスも設計してみた。この電源ボックスはコンセントを縦並びにすることで、横長の電源ボックスとして設計している。下部には1.3Lほどの密閉された内部空間を設け、この中にジルコンサンドなどを充填し、重量付加を図る。
ま、こんな感じで、次期システムの設計を進めてます。システムの大筋は決まってきたが、まだまだ煮詰めなきゃならんことがたくさんある。この先、どうなることやら。ではでは。 |
||||||||||||||||||||||||||||||||||||||||||||||||||||||||||||||||
|
2005.9.17
9月のオーディオ出もの初もの こんにちはみじんこです。9月分の巡礼記も長くなったので、今日から2ページ目です。9月上旬はこちら。 最近、オーディオみじんこのホームページ容量を確認したら、総画像数は4,000枚を超え、総データ量は200MBを突破。現在のサーバーでは300MBまでが限界。ま、あと100MBあるから半年くらいはなんとかなるかな。ページ数は200ページに届きそうな勢い。この2年弱で、よくぞここまで大きなサイトを作ったものだと思う。昔作ったページなどを見返してみると、レイアウトが崩れていたり、各所にリンク切れや誤字脱字が見つかる。気合いを入れて、全てのページを校正したいのだが、あまりにもページ数と文章量が多いので、なかなか手をつけられずにいる。 そうそう、昨日はヨドバシカメラマルチメディアアキバのオープン日。仕事が立て込んでて、残念ながらオープン日には行けなかったけど、秋葉原駅ではヨドバシカメラの買い物袋を下げた人を幾人も見かけた。初日に訪れた知人の話によると、店内は相当な混雑で、大入り満員だったらしい。週明けにでも行ってみるか。 |
||||||||||||||||||||||||||||||||||||||||||||||||||||||||||||||||
![]() |
![]() |
|||||||||||||||||||||||||||||||||||||||||||||||||||||||||||||||
| さて、いきなりダイナミックオーディオ新宿店です。9月上旬のこと、ソニーの隠れた名D/AコンバーターDAS-R10を発見!うーん、このなんともいえないシンプルさがいいですなぁ。DAS-R10は1993年発売の同社最高級DAC。CDトランスポートCDP-R10(\1,200,000)も同時発売されており、ペアで2,000,000円というソニー最上級のセパレートCDPだった。この価格からして、それほどの数が売れたとも思えず、中古でもほとんど見かけることはない。半年くらい前にオーディオスポットカマニで見かけて以来だ。
同店の2階入り口に貼ってあったポスター。第11回真空管オーディオフェアの案内だ。今回もぜひ訪れたいと思っている。原田加工所ブースを訪れて、パッシブコントローラーVF-203の進展状況を聞かねば。私が以前、同社に電話確認したところ、同社社長がご病気ということで、VF-203の製造は一時中断しているということだった。製作総予定数は12台ほどで、すでに8件ほどの注文が入っているとお聞きした。同社はホームページがないので、オーディオ雑誌で得られる以上の情報が少ないのだ。 |
||||||||||||||||||||||||||||||||||||||||||||||||||||||||||||||||
![]() |
![]() |
|||||||||||||||||||||||||||||||||||||||||||||||||||||||||||||||
| こちらは解体されるヤマギワ電気秋葉原本店。道路の拡張工事のため取り壊されることになったのだ。なお、同店の中身と店員は、石丸電気本店などへ分散移動している。 | ||||||||||||||||||||||||||||||||||||||||||||||||||||||||||||||||
![]() |
![]() |
|||||||||||||||||||||||||||||||||||||||||||||||||||||||||||||||
| 反対側を見上げると、ヨドバシカメラマルチメディアAkibaがそびえ立っている。潰れゆく店、新たな船出を迎える店・・・秋葉原の移り変わりを肌で感じる今日この頃。ヨドバシカメラマルチメディアAkibaの進出については、歓迎する店と戦々恐々としている店と、反応は実に様々。いずれにせよ、電気街方面のお店達もあぐらをかいているわけにはいかないはずで、店舗をリニューアルしたり、広告をうったり、様々な対抗策を取っている。私が感じるところ、このヨドバシカメラ進出とは関係なく、ここ半年ほどの間で秋葉原の人種が確実に変わってきているということだ。20代くらいの若い女性が非常に多いのだ。明らかにOLや学生ではなく、かといって買い物をしにきたわけでもなさそう。推測するに、ここ半年ほどで急速に増えてきたメイドカフェやマンガ喫茶、チェーン店のカフェなどの店員さんではないかと思う。秋葉原にメイドカフェが最初に出来たのは、今から4年ほど前だったと記憶している。最初は、よくぞこんな変なコスプレカフェなんぞ作りおって、誰か入る奴いるのかね、なんて思ってたが、今ではすっかり秋葉原に定着している。秋葉原駅前でメイド服を着た女の子がチラシを配っていても、全く違和感を感じなくなってしまった。ま、需要と供給が見事に一致しているのだから、秋葉原にはこの先、ますますメイドカフェが増え続けるものと思われる。 | ||||||||||||||||||||||||||||||||||||||||||||||||||||||||||||||||
![]() |
![]() |
|||||||||||||||||||||||||||||||||||||||||||||||||||||||||||||||
| これはヨドバシカメラマルチメディアAkibaのオープン前日。関係者向けの内覧会がおこなわれていた。相当数の人並みがビルに吸い込まれていったのだが、みんな関係者なのだろうか。私はこれ以上、中には入らなかった。 | ||||||||||||||||||||||||||||||||||||||||||||||||||||||||||||||||
![]() |
![]() |
|||||||||||||||||||||||||||||||||||||||||||||||||||||||||||||||
| オープン前日だというのに、ヨドバシカメラマルチメディアAkibaの周りには人が溢れ、お祭り状態だった。同店から反対側を見上げると、秋葉原クロスフィールドのビル群がそびえ立っている。左の高層ビルは秋葉原ダイビルで、今春すでにオープンしている。オフィスなどが入居するビジネスビル。一階にあるエクセルシオールカフェにはホットスポットが設置されているので、私もよく利用させてもらっている。右の横長のビルはオープン間近の秋葉原UDXビル。企業オフィスやレストラン、イベントホール、それに地下1〜3階は巨大駐車場になる予定。このビル群の建設前、この土地は巨大駐車場だった。駐車場が完成すれば、秋葉原の駐車場不足は一挙に解決しそうだな。 | ||||||||||||||||||||||||||||||||||||||||||||||||||||||||||||||||
![]() |
![]() |
|||||||||||||||||||||||||||||||||||||||||||||||||||||||||||||||
| 9月初頭。さて、こちらはコイズミ無線に入荷したTBの新型スピーカーユニット。13cmの透明ポリプロピレンコーンウーハーで、型番はW5-1374SA。六本木工学研究所の方からお聞きした話なのだが、このユニットは六本木工学研究所の強い働きかけによって製品化されたらしい。なんでも同社の社長が透明コーン好きらしく、従来に無い透明度の高いユニットをTBに切望されたらしい。たしかに、従来の透明ポリプロピレンコーンは半透明という感じだったが、W5-1374SAは全くの無色透明。向こう側が完全に透けて見えるユニットは初めてかも知れない。有色無色に限らず、ポリプロピレンコーンは音色傾向としてはまろやか系らしく、ペーパーコーンとは対局の性格らしい。私も何度かTBやUSHERのポリプロピレンコーンユニットスピーカーを試聴しているが、総じて穏やかな印象を受けた。私的にはペーパーコーンの快活さの方が好きだ。 | ||||||||||||||||||||||||||||||||||||||||||||||||||||||||||||||||
![]() |
![]() |
|||||||||||||||||||||||||||||||||||||||||||||||||||||||||||||||
| こちらもTBの新型ウーハーW5-576SE。W5-1374SAとフレームは同一。スペックには違いがある。ひとところ落ち着いていたTBだが、また立て続けに新製品が出てくるのかなぁ。かくいう私はTBのユニットを一度も使った事が無い。魅力的なユニットが幾つもあるので、いつか使ってみたいとは思っている。余談だが、FOSTEXのマグネシウムコーン8.5cmフルレンジはまだまだ先の話になるようだ。技術的なこと以外にも色々とあるらしく、製品化されるかどうかも不明だ。 | ||||||||||||||||||||||||||||||||||||||||||||||||||||||||||||||||
![]() |
![]() |
|||||||||||||||||||||||||||||||||||||||||||||||||||||||||||||||
| 9月初頭。オーディオユニオンお茶の水店2階に入荷したDAP-777。中古価格198,000円なり。DAP-777はレイミョーブランドのD/Aコンバーターで、私が外付けDACの候補の一つとして考えていた機種だった。奇しくもこの日はDAC64Mk2を受け取りに訪れた日だった。ま、両方買うほどの余裕はないし、私はDAC64Mk2で十分満足出来そうだから、DAP-777は拝むだけにした。ちなみに、DAP-777は同店に数ヶ月前にも入荷しており、その時はたしかこの価格より少し安かったように思う。右はPASSLABのALEPH2。498,000円/ペア。実物を初めて見た。ALEPH2はご覧の通り、モノラルパワーアンプ。ALEPH0の後継機である。筐体は兄弟機のALEPH5と同じ。ALEPH0sの後継機はALEPH5。 | ||||||||||||||||||||||||||||||||||||||||||||||||||||||||||||||||
![]() |
![]() |
|||||||||||||||||||||||||||||||||||||||||||||||||||||||||||||||
| こちらは今週訪れた秋葉原神田川沿いにあるヒノオーディオ。ヒノオーディオの内部をオーディオみじんこで紹介するのは初めて。ヒノオーディオは地下のスピーカークラフト店、隣のビルの一階にある真空管アンプ店、隣接してビンテージユニットを扱うサウンドギャラリー店、さらにお隣にはビンテージユニットなどビンテージオーディオ全般を扱うサウンドギャラリー2号店の、計4店舗で構成されている。いかんせん、電気街の外れに位置しているので、ここを訪れる人は常連客のみだ。それでも息長く営業し続けているのはありがたいことだ。私は月一くらいで同店を訪れる。右はスピーカークラフト店の一風景。JBLの巨大ホーン2360Bデッドストック品が入荷していた。きちんと試聴出来るのが同店らしい。このような巨大ホーン、すごいなぁとは思うが、未熟者の私には分不相応な領域だ。熟練したオーディオマニアにこそ相応しい世界だな。 | ||||||||||||||||||||||||||||||||||||||||||||||||||||||||||||||||
![]() |
![]() |
|||||||||||||||||||||||||||||||||||||||||||||||||||||||||||||||
| 壁に陳列されているユニット群。全てエンクロージュアに組み込まれており、試聴可能な状態。私は最近、後面解放スピーカーの製作を模索している。そこで、後面解放スピーカーに合うスピーカーユニットを探している。後面解放はマイナーなエンクロージュア方式で、情報も少ない。後面解放について色々調べていくうちに、古典的なフルレンジユニット、或いは同軸2wayユニットが合うのではないかと考えるようになった。こういうユニットはヒノオーディオが得意のはずと思い立ち、訪れた次第。うーん、魅力的なユニットがたくさんあるなぁ。ALTECのCD408-8Aなんかは元々天井用の壁埋め込みユニットとして設計されており、平面バッフルや後面解放にも好適との話を聞いていた。見た目も古めかしくて、味がある。アルテックの音は好きだし、価格も手頃なので、後面解放の第一候補だな。
そんなこんなで、後面解放スピーカーユニットを探しているうち、先日ヤフオクにて中古のJBL2142Hを落札。今日、手元に届く事になっている。上述のALTECCD408-8A、あるいはCD912-8Aなんかも考えていたのだが、とりあえずはJBL2142Hで楽しんでみよう。ま、ユニットだけ手に入っても、今は鳴らす事が出来ない。早くスピーカーエンクロージュアを作らねばならんです。 |
||||||||||||||||||||||||||||||||||||||||||||||||||||||||||||||||
![]() |
![]() |
|||||||||||||||||||||||||||||||||||||||||||||||||||||||||||||||
| 秋葉原広しといえども、ラウザーのユニットを常時扱っているのはヒノオーディオだけだろう。なんともマイナーなブランドだが、これはこれでコアな愛好者がいるのだ。アルニコの巨大マグネットが独特。見た目はいかんともしがたいが、音はいいらしい。こういう珍ユニットに手を出すのは、オーディオの酸いも甘いも知り尽くした人のみに許されるのかもしれない。右は大型ウーハーの陳列棚。フォステクスの38cmウーハー15W400のフレームが目を引く。頑丈そうなユニットだが、値段はたったの2万弱。 | ||||||||||||||||||||||||||||||||||||||||||||||||||||||||||||||||
![]() |
![]() |
|||||||||||||||||||||||||||||||||||||||||||||||||||||||||||||||
| スピーカークラフト店の階段に貼られていたチラシ。サウンドパイプというスピーカーで、今密かなブームとなっている自作塩ビ管スピーカーを彷彿とさせる。ヒノオーディオを訪れた事のある人ならご存知の、地上の入り口に置いてあるスピーカーだ。 | ||||||||||||||||||||||||||||||||||||||||||||||||||||||||||||||||
![]() |
![]() |
|||||||||||||||||||||||||||||||||||||||||||||||||||||||||||||||
| スピーカークラフト店にはこのような巨大スピーカーターミナルも売られている。他店では見かけない。これはT-5907という型番が付けられており、同店のオリジナルブランド“HyuGer”の札が付けられているが、同店のオリジナルでは無かったと思う。このターミナル、見覚えのある方も多いだろう。そう、このターミナルは1990年代頃、LUXMANのパワーアンプなどに採用されていたものだろう。
右はサウンドギャラリー2号店の床に置かれていたパイオニアのウーハー。この日、2号店は定休日だったので、ガラス扉越しに店外から撮影。15,000円/個。4個ある。ん?このウーハーどこかでみた事あるぞ。たぶん、同社のバーチカルツインスピーカーS-1000TWINに搭載されていた20cmウーハーではないだろうか。であるとすれば、これはアルニコマグネットのはず。S-1000TWINから部品取りで取り出されたものか。違ってたらごめんなさい。 |
||||||||||||||||||||||||||||||||||||||||||||||||||||||||||||||||
![]() |
||||||||||||||||||||||||||||||||||||||||||||||||||||||||||||||||
| こちらは秋葉原のラオックスMac館の1階。壁一面に国内外のインナーイヤー型、カナル型イヤホンなどが陳列されている。全てヘッドホンアンプへ接続されており、常時試聴可能。なんと言ってもありがたいのは、シユアーとエティモティックリサーチのカナル型イヤホンが全て試聴できることなのだ!写真には納めていないが、オーディオテクニカやKOSS、SONYなどもずらりと並べられている。 | ||||||||||||||||||||||||||||||||||||||||||||||||||||||||||||||||
![]() |
![]() |
|||||||||||||||||||||||||||||||||||||||||||||||||||||||||||||||
| なぜにオーディオ店ではなく、パソコン店でこのような陳列がなされているかと言えば、iPodがあるからに他ならない。右は先日発売されたばかりのiPodnanoに群がる人々。
左はエティモティックリサーチのカナル型イヤホン。シュアーとエティモティックリサーチが一斉試聴できるお店は、私の知る限りここだけだ。シュアーは比較的流通しているため珍しくはないが、試聴できるというのはありがたい。なにより、エティモティックリサーチを店頭販売しているのが貴重。エティモティックリサーチのERシリーズと言えば、ヘッドホンマニアの間で相当話題になっているカナル型イヤホンで、私も同社のER-4Sを愛用している。 かねがねやりたったERシリーズの比較試聴。私は嬉々としてER-4P/ER-4B/ER-4S/ER-6i/ER-6を試聴した。他人の耳に挿し込まれて黄色くなっていようが、そんなこたぁ気にしない気にしない。この5種類、それぞれ音が違う。ER-4P/ER-4B/ER-4Sではインピーダンスがかなり違えてあり、誰が聴いても音量レベルの違いがはっきり分かる。ER-4S<ER-4B<ER-4Pの順で音量が上がる。ER-4Pはインピーダンスが低く設定されているので、小さな入力信号で大音量再生が可能だ。元気の良さが気持ちよく、中高域がビシバシと突き刺さる感じ。たしかにポータブルオーディオ向きだろう。反面、粗っぽさも感じる。ER-4Bはバイノーラル録音のソース試聴に特化した型番。これは緻密な描写が特徴的。ER-4Pより小さいがER-4Sよりは若干大きい。お次は、私も常用しているER-4S。ER-4Pを聴いた後では、ER-4Sは音が小さすぎると感じてしまう。ただ、ボリュームを上げれば問題は無く、帯域の誇張感や癖も感じられず、バランスの良さではERシリーズで僅差で一番かも。ER-6は安価だが、ER-4Sに迫る解像度で、コストパフォーマンスが高い。 野外でも屋内でも使い、特にクラシックやジャズなどの高音質ソースをリアルに聴きたい人にはER-4Sが無難だ。演奏者の靴が床と擦れる音とか、ほんの小さなささやきとか、あれ?こんな音まで入っていたのか!とびっくりすることもある。ER-4Sは音質面にさほど配慮されていないソースの再生においては、ただのカナル型イヤホンでしかない。ところが、優秀録音のライブや高音質録音盤などを再生すると真価を発揮する。 ロックやポップスなどの音楽を聴くなら、バリバリ鳴りまくるER-4Pを選択した方が良さげ。ただ、あまり調子に乗りすぎて大音量再生しすぎると、一時的な難聴になり、それが重なると本当の難聴になる危険がある。カナル型は密閉型なので、音の逃げ道が無く、鼓膜を痛めやすいのだ。 意外だが、一番魅力的だったのはER-4Bだ。ER-4SとER-4Pはネット上でもてはやされている分、ER-4Bは特殊用途を前提としているため購入者が少ないのか、あまり話題にならない。ER-4Bは、ER-4Sを少し濃密にした感じかな。ま、これらは私が感じたことで、マニアの方の中にはもっと違う意見があるかも、いや、異論があって当然だ。 |
||||||||||||||||||||||||||||||||||||||||||||||||||||||||||||||||
![]() |
![]() |
|||||||||||||||||||||||||||||||||||||||||||||||||||||||||||||||
| 秋葉原ソフマップのMac専門店店頭展示。黒モデル/白モデルともに2GB/4GBがある。2GBが21,800円、4GBが27,800円。どの店も同じ価格だ。iPodnanoは発売初日で、ほとんどの店で完売。 | ||||||||||||||||||||||||||||||||||||||||||||||||||||||||||||||||
![]() |
![]() |
|||||||||||||||||||||||||||||||||||||||||||||||||||||||||||||||
| iPodnanoはご覧の通り、とても小さい。しかも極薄。これは音楽データの記憶装置にフラッシュメモリーを採用したから。黒モデル/白モデルともに表面は艶あり。個人的には黒モデルに惹かれる。艶消し黒モデルなんかがあったらかっこいいのになぁ。背面の銀色部分はステンレスではなく、樹脂製だ。 | ||||||||||||||||||||||||||||||||||||||||||||||||||||||||||||||||
![]() |
![]() |
|||||||||||||||||||||||||||||||||||||||||||||||||||||||||||||||
| ここ半年ほど、デジタルポータブルオーディオの購入を模索している。iPodも悪くはないが、他にも物欲を注がれるものはある。例えば、左のiRiverH120やH140。バッテリーの持ちがいいのが特徴だが、すでに絶版しており、中古では値ごろ感が出てきている。現在のiPodはバッテリーの持ちが改善されているので、H120やH140の優位性は少ない。黒くてカッコはいいのだが。右は今春発売されたiAUDIOのX5。標準モデルのX5は14時間、バッテリー強化モデルのX5Lはなんと35時間のバッテリー保持時間となっている。デザインも渋いし、iPod並みにコンパクトだし、WAVファイルが再生出来るし、ボイスレコーダーにもなるし、これはいいかも。 | ||||||||||||||||||||||||||||||||||||||||||||||||||||||||||||||||
![]() |
![]() |
|||||||||||||||||||||||||||||||||||||||||||||||||||||||||||||||
| 若松通商秋葉原ラジオ会館店に入荷したマランツの業務用パワーアンプMODEL DA55。トライパスのデジタルアンプICを搭載。価格は29,800円。主にカラオケ店でのカラオケ用アンプとして流通しているらしい。説明書にも、カラオケ装置との接続について記載があった。このDA55、店の奥に引っ込められている時もあるので、気になる人は店員さんに尋ねてみるとよい。店の奥から出してくれる。なお、DA55の店頭在庫は無い。受注してから、メーカー側でトランスを搭載して、出荷するらしい。 | ||||||||||||||||||||||||||||||||||||||||||||||||||||||||||||||||
![]() |
![]() |
|||||||||||||||||||||||||||||||||||||||||||||||||||||||||||||||
| このパワーアンプ、ケースは柔だし、高級感は無いし、端子類は安物で、このままではとてもピュアオーディオには使えそうにない。使えるかもしれないが、使いたくない。しかしながら、この巨大トランスがなんとも魅力的。実際に持って見ると、ケースが傾くんじゃないかと思うくらい、トランス側の方が圧倒的に重い。 | ||||||||||||||||||||||||||||||||||||||||||||||||||||||||||||||||
![]() |
![]() |
|||||||||||||||||||||||||||||||||||||||||||||||||||||||||||||||
| ビニールが反射して内部がうまく撮影出来なかったが、この基盤の真ん中にトライパスのICが搭載されている。この薄型ケースには、トランス、フロントパネルLEDコントロール基盤、ボリューム関連の制御基盤、アンプの基盤、入力端子関連の取り付け基盤、スピーカーターミナル関連の基盤が全てネジ止めされている。この中身を見る限り、同社のスタジオ用パワーアンプDA04に良く似ている。強者ならば、このDA55を購入して、自前できちんとしたケースと端子類を用意し、中身をそっくり移し替えてやるなんてこともできるかもな。ま、気になる人は若松通商秋葉原駅前店にどうぞ。 |
|
|||||||||||||||||||||||||||||||||||||||||||||||||||||||||||||||
|
|
||||||||||||||||||||||||||||||||||||||||||||||||||||||||||||||||